8 Alston Close, Sutton Coldfield, Birmingham

8 Alston Close, Sutton Coldfield, Birmingham

8 Alston Close, Sutton Coldfield, Birmingham Birmingham City Council Conservation Area Approved Planning Drawings This historic building in a conservation area in Sutton Coldfield was to include a ground floor rear extension, infill, and a first floor rear extension...
96 Anstey Road, Great Barr, Birmingham

96 Anstey Road, Great Barr, Birmingham

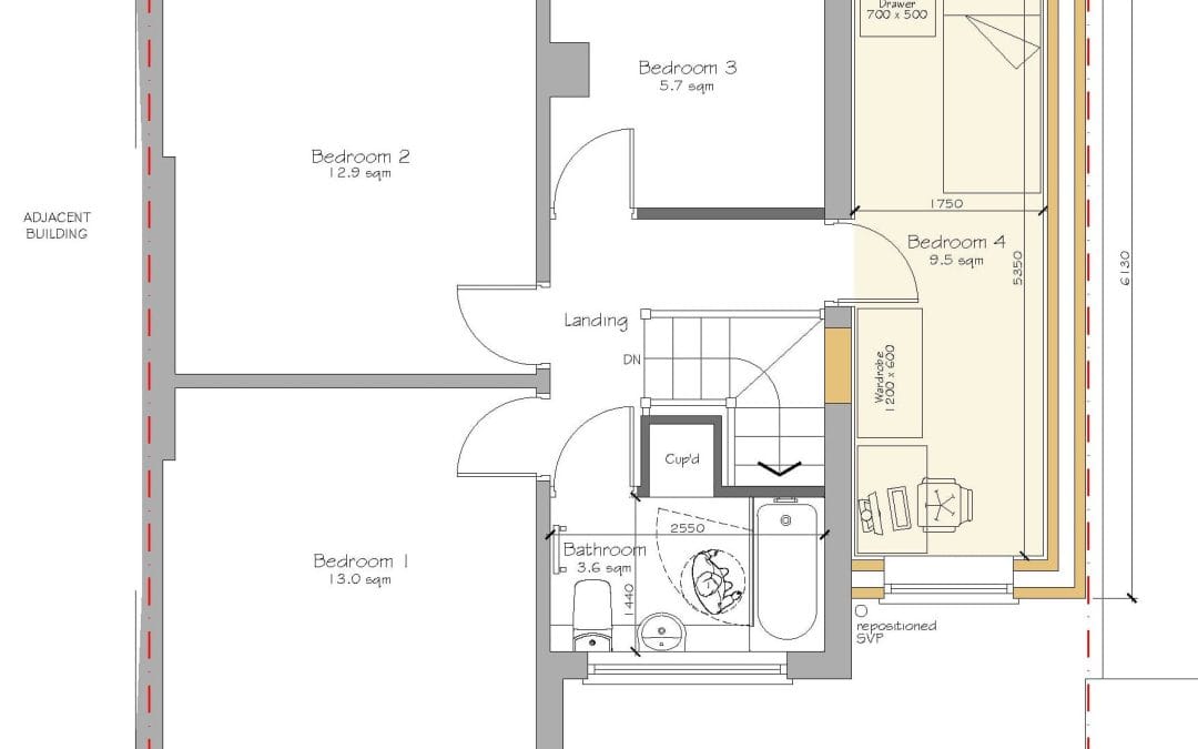
96 Anstey Road, Great Barr, Birmingham Birmingham City Council – Approved Planning Drawings To maximise the loft conversion the hipped roof on this semi-detached property was converted into a gable roof, and a rear full width dormer added, which can all be done...
18 Malvern Road, Yardley Wood, Birmingham

18 Malvern Road, Yardley Wood, Birmingham

18 Malvern Road, Yardley Wood, Birmingham Birmingham City Council – Built This 1960’s semi-detached house was transformed with this large loft conversion with a full width dormer, and a contempaory modern juliet balcony, accomadting a large double bedroom and...
57 St Kenelms Avenue, Hagley Green, Halesowen

57 St Kenelms Avenue, Hagley Green, Halesowen

57 St Kenelms Avenue, Hagley Green, Halesowen Dudley Metropolitan Borough Council – Approved Planning Drawings Single storey extension on the first floor on the side over an existing garage – unlike other local authority planning policy, Dudley requires a large...