48 Weoley Hill, Selly Oak, Birmingham

48 Weoley Hill, Selly Oak, Birmingham

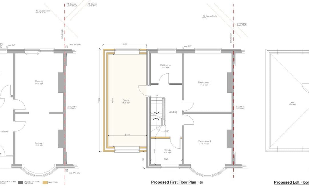
48 Weoley Hill, Selly Oak, Birmingham Birmingham City CouncilBournville Village Trust (BVT) – Approved BVT Drawings A 2 storey side extension, and loft conversion with rear roof lights, in the ‘Traditional Zone’ in Bournville Village Trust. Care needed to be...
59 Corisande Road, Selly Oak, Birmingham

59 Corisande Road, Selly Oak, Birmingham

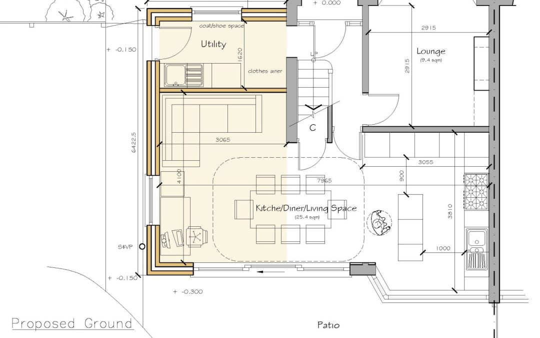
59 Corisande Road, Selly Oak, Birmingham Birmingham City Council – Approved Planning Drawings – Built A 1930’s semi-detached property with a 2 storey side extension enlarging both the ground and first floor, accommodating a spacious double bedroom with...
57 St Kenelms Avenue, Hagley Green, Halesowen

57 St Kenelms Avenue, Hagley Green, Halesowen

57 St Kenelms Avenue, Hagley Green, Halesowen Dudley Metropolitan Borough Council – Approved Planning Drawings Single storey extension on the first floor on the side over an existing garage – unlike other local authority planning policy, Dudley requires a large...